To : The Planning Department
Dear Sir / Madam
A planning application 16/02991/FU has been submitted to replace a building containing 38 student beds with a building containing 42 student beds and 9 professional beds, a total of 51 beds. The building to be demolished is the former Park Hotel at 82 Hyde Park Road.
The three following images show that the proposed building is more massive than the building it would replace, and also that it is the same height as the building higher up the hill on the other side of Hyde Park Road.



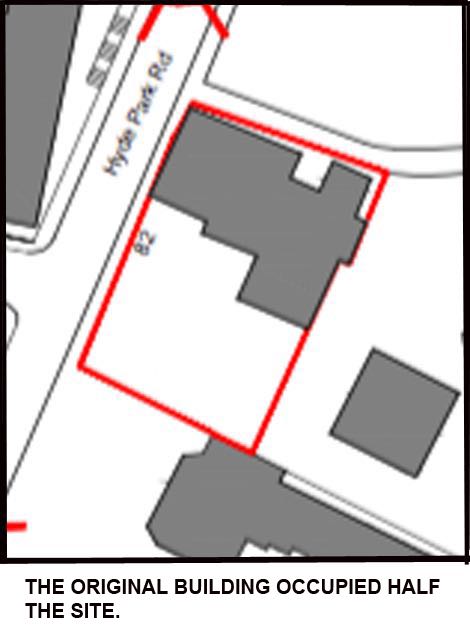
The following two images show that whereas the existing building occupies half the site, the proposed buildings would occupy the entire site.


Reasons why this planning application should be refused are as follows:
- The development is an over over-intensive use of the site by virtue of the building’s height and the fact it occupies all of a very small site going right up to the pavement’s edge.
- The development does not reflect the topography of the land i.e. the height of the building does not respect the principle of “stepping down the hill” (page 42 of Neighbourhoods for Living,1 December 2003).
- At present, taxis can pull into the car park. As the proposal requires that the car park should be built on, there would be nowhere for taxis to pull in. So they would have to park on Hyde Park Road causing an obstruction.
- Because of its height, prominence, proximity to and lack of sympathy for Hyde Park Road and neighbouring properties, the development would be detrimental to the visual amenity and character of the area.
- Neighbourhoods for Living (page 43) requires that development should “respect what would be overlooked and overshadowed.” But because of it’s height, the building would dominate Hyde Park Road Road and the neighbouring Methodist church.
- Page 7 of the Design and Access Statement states, “The height of the elevation facing Hyde Park Rd is very similar to the existing ridge height.” However, photos contained elsewhere in the Design and Access Statement show this statement to be incorrect
- Page 6 of the Design and Access Statement states, “Critically the height of the proposed building is lower than the four storey student accommodation facility opposite.” If this is true, then the accompanying diagrams establish that the difference in height can only be a matter of inches.
- The existing building was formerly the Park Hotel, known locally as “The Little Park” to distinguish it from the Royal Park Hotel and the Hyde Park Hotel. In White’s Directory of 1870 it is called “The Park Tavern” and is described as a beerhouse whose landlord was George Hobson. Porter’s Directory of 1872 reports that Mr Hobson was a councillor for Holbeck ward. The pub eventually came into the ownership of Melbourne Ales and passed to Tetley’s in 1960 when Melbourne’s was taken over by Tetley’s. In 1978 in a pub exchange, ownership passed to Bass. The pub was flourishing in the 1980s and would probably still be flourishing but for the increased demand for student accommodation that resulted from the Blair government greatly increasing student numbers. This former pub is the only building in the triangle of land between Woodsley Road and Hyde Park Road to survive from the mid nineteenth century. It was a pub for at least 120 years and a meeting place for the local community. It would be a tragedy to lose it now after so many years.
Yours faithfully
Bill McKinnon
18 Kendal Walk
Leeds
LS3 1NP
References